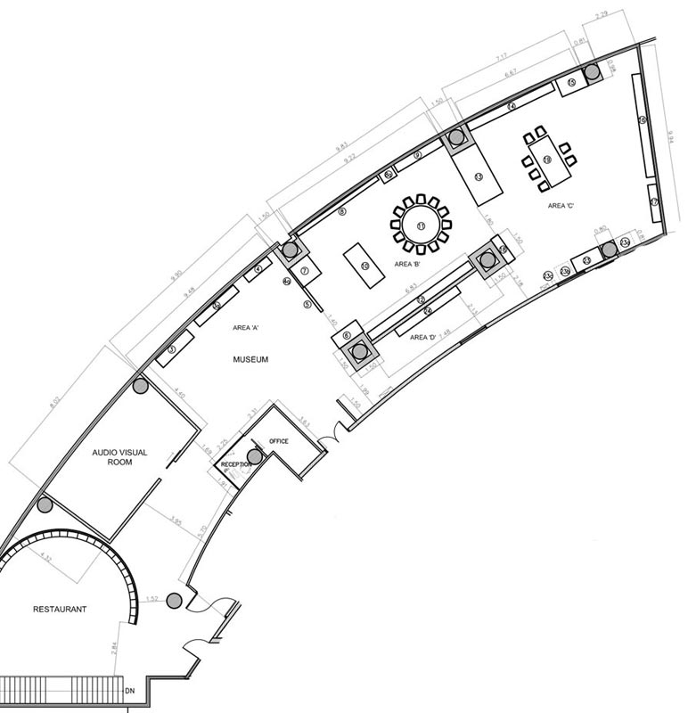
Here is the space, about 400m2 of it!
Below is how it looks now, all the windows will be blacked out, the floor will be concrete with a resin finish and the ceiling and walls painted very dark blue.
As you can see some way to go but the space will be ready by the first week of November when the cabinets arrive.




